10 Agosto 2018

| Presentan anteproyecto de Fraccionamiento “Las Veredas” al H. Ayuntamiento de NCG |
El pasado miércoles acudió a la sesión ordinaria de cabildo Jared Jhones, quien por medio de una exposición presento al H. Ayuntamiento de Nuevo Casas Grandes el anteproyecto del Fraccionamiento Las Veredas, el cual estaría ubicado al sur de la Ciudad por la carretera al vecino municipio de Casas Grandes.
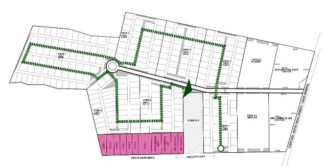
Jared Jhones informo a los regidores que se tiene pensado realizar este fraccionamiento en varias etapas con 264 lotes que abarcaría el fraccionamiento con un régimen de condominio y con una reserva para vivienda a futuro.
Cada lote constara de 1600 metros cuadrados y se venderán bajo régimen de condominio a bajo costo y con facilidades.
Menciono también que el municipio no tendrá la responsabilidad de la recolección de basura, vialidad y otros serán los mismos residentes del fraccionamiento quienes se encarguen de atender o solucionar estos servicios.
Resalto que el fraccionamiento será en un cien por una área permeable, evitando inundaciones, además contará con vegetación, bajo mantenimiento, autóctona y ornamental.
Se tiene programado sea un estilo campestre, con áreas verdes y equipamiento, que serían de donación, con un sistema de corredores, además contaría con un caminador de 9 metros de ancho para que sea utilizado por los residentes.
Contará con todos los servicios básicos agua, electricidad y fosa séptica, para concluir resalto la importancia de este tipo de proyectos donde buscan que inversionistas vengan instalarse a esta ciudad y que profesionistas que egresen de las diferentes intuiciones de nivel superior se queden en la región y no se vean en la necesidad de salir dijo; estamos exportando gente muy valiosa es importante se queden aquí.
Por lo que este tema fue turnado a comisión de Desarrollo Urbano y será después de una investigación que aprueben si es viable o no el anteproyecto del Fraccionamiento.



|